73 077 ₽/м²
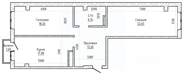
Продается двухкомнатная квартира площадью 78 кв. м. в новом доме комфорт-класса Родина Дом на стадии сдачи. При сдаче в квартиру будут проведены все коммуникации (свет, вода, газ), качественные сейфовые двери, стеклопакет премиум качества. В квартире сделаны предчистовые работы, гипсовая штукатурка, электрика, стяжка, теплый пол. В квартире крайне удобная планировка с большим санузлом, просторной прихожей и гардеробной. Окна выходят как во двор, так и на улицу, прекрасный вид из окон. Особенностью жилого комплекса "Родина" является удачное сочетание высокого статуса жилья, современных технологий строительства и стройматериалов, комфорта и удобства. Закрытая придомовая территория, полностью оборудованная для занятий спортом и отдыха, зеленый двор больших размеров рядом со сквером. Грузопассажирские бесшумные лифты, изысканная входная группа, линия коммерции на 1-м этаже. Этот жилой комплекс может похвастаться всем необходимым для комфортной жизни в пешей доступности. Рядом с домом располагаются школа, детский сад, МФЦ, спортивный центр, парковая зона, супермаркеты Пятерочка и т.д. Транспортная развязка: проходят маршруты 6, 14, 15, 18, 24. По всем вопросам звоните! Арт. 69666580









































































