116 129 ₽/м²
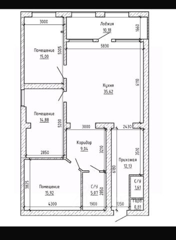
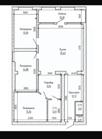
В продаже квартира по проспекту Кулиева! В квартиpe косметический ремонт, удобная изолированная планировка, совмещенный санузел, имеется большой балкон Отличный вариант для большой семьи. Удобное расположение и инфраструктура! Рядом: Гимназия кинотеатр хозяйственные и продуктовые магазины кафе парк Торговые центры Один собственник Документы в порядке. Звоните!!! Арт. 94933050








































































