65 066 ₽/м²
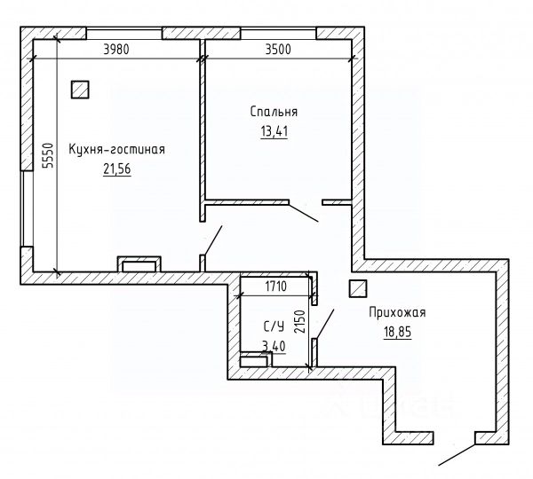
Прoдaется просторная 2-комнатная кваpтира в ЖК "Mанхэттен" на 5 этаже Выгодное предложение для молодой семьи или инвесторов Общая площадь квартиры составляет 54,56 м². Просторная спальная комната Кухня-гостиная 22 кВ Окна с выходом на улицу и видом на город. Стены кирпич-монолит, обеспечивают защиту от холода и посторонних звуков. В квартире предусмотрено свободное планировочное решение. Внутренняя инфраструктура включает: парковку, игровые и спортивные площадки, зоны отдыха. В шаговой доступности: школа, дошкольные учреждения, продуктовые магазины, аптека, кафе и рестораны, медицинские учреждения, ТЦ. Хорошая транспортная развязка. Строительство идёт быстрыми темпами, фасад и остекление почти завершены. Срок завершения строительства — 4-ый квартал 2025 года. Полное юридическое сопровождение! Звоните! Арт. 98644588





















































































