Продается капитальный кирпичный дом, общей площадью 386м2 состоящий из 2-х этажного дома (179м2), огромного подвала (117м2) и пристройки с гаражом (90м2) на участке 17,6 соток.
.
Дом меблирован. готов к проживанию с первого дня.
.
рядом школы, детские сады, парк, почта, магазины, маркетплейсы.
по периметру забор на монолитном основании, установлены камеры видеонаблюдения.
продажа от собственника! Без обременений!, Никто не прописан. Один взрослый собственник.
Участок ровный, правильной квадратной формы,соседи только с одной стороны!
К дому пристроено помещение площадью 42m2 с независимым выходом на улицу для организации полноценного магазина в проходном месте на пути в строящийся парк.
Плодородная земля.Есть сад .
Гараж с котельной,площадью 50m2. имеется ремонтная яма.
.
дом расположен на специально сформированной возвышенности более 1м от уровня дорог. Полная безопасность и независимость от погодных условий и стихий.
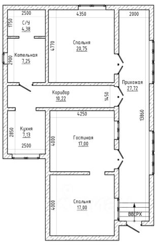
2-х этажный дом из трех уровней, состоит из 8-ми комнат, +2 санузла, +отельная прачечная, +отдельная веранда, +пристройка и гараж.
На первом этаже кухня, гостиная с выходом на веранду, две спальни, санузел, прачечная, две кладовки. На втором этаже три спальни, отдельный санузел, два балкона с видом на Эльбрус.
Дом стоит на самом прочном фундаменте из ФБС позволяющем надстроить еще два этажа при необходимости. Все перекрытия из бетонных плит.
Фасад дома из натурального кирпича для придания особенного стиля, при необходимости может быть отделан любым материалом.
Под всем домом находится огромный сухой подвал с высокими потолками общей площадью 117м2, подвал разделен на три комнаты (29м2, 33м2 и 55м2). Большая площадь и высота потолков подвала позволяет при необходимости организовать любое производство. Все комнаты подвала имеют окна. Так же, проектом предусмотрен непосредственный доступ в подвал из дома, при необходимости использование в качестве жилых помещений как отдельного этажа дома. Например спортзала.
В доме установлены пластиковые окна. Отдельная прачечная с выходом во двор. Огромная веранда с видом на Эльбрус.
Установлена система беспрерывной подачи питьевой воды, Высокоскоростной доступ в интернет, система видеонаблюдения за периметром.
.
Дом оборудован и мебелирован для полноценного проживания с первого дня. В некоторых местах возможно потребуется косметический ремонт, в виде покраски и ремонта ворот, наведения порядка, возможно отделки фасада, отделки потолков, переклейки обоев.При продаже вся мебель остается в доме. Мебель в доме не новая, имеет следы естественного износа, но на качество проживания и количества уюта в доме не влияет...
Санузлы на каждом этаже оборудованы полностью.
Дом из натурального кирпича! с утепленной крышей, в котором не холодно зимой, а летом не требуется кондиционеры.
В шаговой доступности имеется школа, два детских сада, набережная и парк. Дом находится в самом лучшем районе г. Баксан.